Beela House

A new home for a downsizing couple that cultivates comfort and a sense of sanctuary with an emphasis on connection with the outdoors.

Project overview

Architect Ironbark Architecture
Location New South Wales, Australia
Type Residential
Area 90 m²
Scope Sustainable design
Completed 2022
Builder Buildup Constructions
Landscaped design Exterior Architecture
Photography Luke Butterfly

Outdoor garden path at Beela House

The brief

Designed with passive solar design principles in mind, Beela is a new home that encompasses the spirit of “less but better”. The home is modestly sized, but provides for all the owners needs; places to relax, places to entertain, places to retreat to, a compact home office and library/reading room that can double as a guest bedroom.

Multiple courtyards and outdoor spaces allow the outdoors to be enjoyed in a variety of weather conditions and never more than a few steps from anywhere within the houses interiors; there is a covered alfresco, sheltered courtyards, productive garden beds, sunny spots to be enjoyed in Winter and shady spaces that provide cooler relief in the height of Summer.

Staircase handrail architectural detail at Beela House

The response

The materials used throughout the house are a mix of raw and warm materials. Honed concrete blocks and a burnished slab provide thermal mass that absorb the heat out of the air in summer whilst storing and releasing heat during winter. Hardwood rosewood windows and blackbutt exposed beams add warm, character and texture. Windows are positioned to suit the path of the sun in Winter, allowing it deep into the house to warm the space, whilst strategically positioned eaves keep the sun out during Summer, meaning the house remains a comfortable temperature year-round without the need for air conditioning.

Design approach

The gardens were designed to be predominantly native, each area with its own slightly unique character. Toby at Exterior Architecture was given a detailed brief for the landscape design that captured both the clients and the architects wish list and the result is striking in its ingenuity. The front yard is given over in it’s entirety to plants with no lawn requiring regular upkeep, rather the garden is left to be a little wild with a winding path to the front door, bird attracting plant species and several trees that over time will grow to provide a large canopy cover.

Beela is an expression of years of designing with passive design principles, incorporated into the home’s design. For an architect; things like building orientation, sun control, thermal mass, etc are tools available for use; but for the client, these invisible tools translate into a home that just feels more comfortable, more nurturing, more pleasing than any other space they’ve lived in.

Living experience

“We chose Ironbark Architecture for its strong emphasis on passive design and sustainability. Chris’ design for our house evolved in a collaborative process that ensured it sat well within the streetscape, surrounded by native plant landscaping. Through a good understanding of the local environment and a design that ensured no air-conditioning and only minimal heating is required, we have a home that is never uncomfortable, even in blasting summer heat. Extensive use of natural materials helps reduce its carbon footprint.”

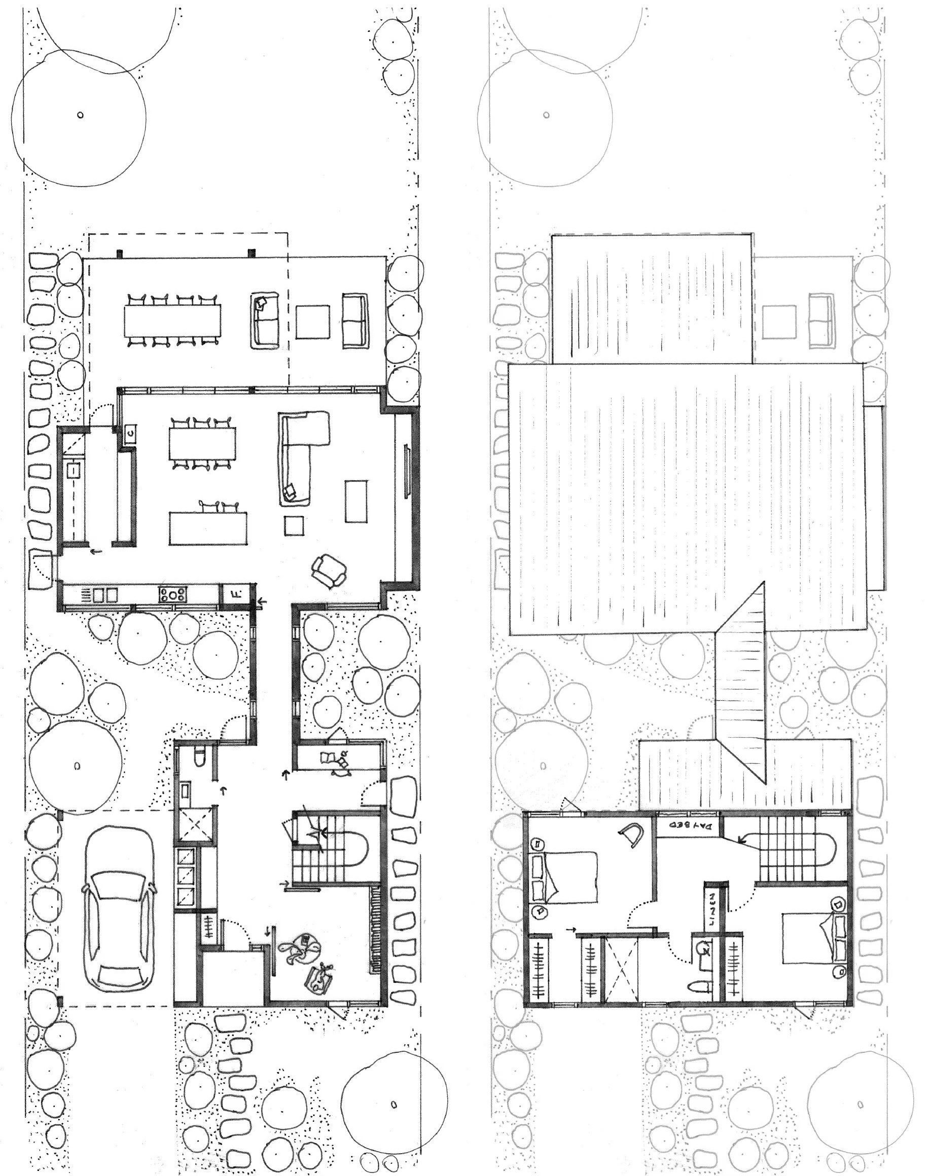
Beela House floor plans
Reading room with passive design at Beela House
Home office for remote work at Beela House by Ironbark Architecture
Passive design kitchen with timber beams at Beela House

Clients testimonial

“Chris enjoys solving design and compliance problems, and worked very well with our builder. He has a focus on quality and detail, while being mindful of budgetary constraints. He was great to work with and project-managed the construction very well, talking us through the various stages clearly and efficiently.”

- Steve + Kris

Timber entry hallway interior at Beela House
Bathroom with green tiles at Beela House by Ironbark Architecture
Bathroom with green tiles at Beela House in Sydney by Ironbark Architecture
    • Passive solar design maximising winter sun and summer shade

    • Thermal mass construction using honed concrete block and burnished slab

    • Deep eaves providing effective solar control

    • Cross-ventilation supported by carefully positioned openings

    • Multiple courtyards creating sheltered outdoor rooms throughout the house

    • Integration of native landscape and productive gardens

    • Strong connection between indoor living spaces and outdoor environments

    • Use of warm natural materials including rosewood windows and blackbutt beams

  • Passive Design Principles

    The house is oriented to capture winter sun while deep eaves provide shade during summer. Thermal mass from the concrete slab and blockwork helps regulate indoor temperatures, allowing the home to remain comfortable year-round with minimal heating or cooling.

    Landscape Integration

    A series of courtyards extend the living spaces outdoors, creating sheltered areas that can be used in different weather conditions. The predominantly native garden strengthens the connection between house and landscape while requiring minimal upkeep.

    Sustainability Considerations

    Passive solar design, natural ventilation and durable materials work together to reduce energy demand and create a home that is comfortable, resilient and connected to its environment.

  • Architect Ironbark Architecture

    Lead architect Chris Freeburn

    Builder Buildup Constructions

    Landscape design Exterior Architecture

    Photography Luke Butterfly

We'd love to chat to you about your project

Tell us about it or give Chris a call on 0416 130 246