Contemporary passive home in Sydney designed for natural light

House Full of Light

A home shaped by daylight and passive design

Project overview

Architect Ironbark Architecture
Location Cronulla, Sydney, Australia
Type Residential
Scope Sustainable design
Completed 2022
Builder Buildup Constructions & My Thred Built
Landscape Design Summerscapes
Photography Andy Macpherson

Street view of modern home in Cronulla Sydney

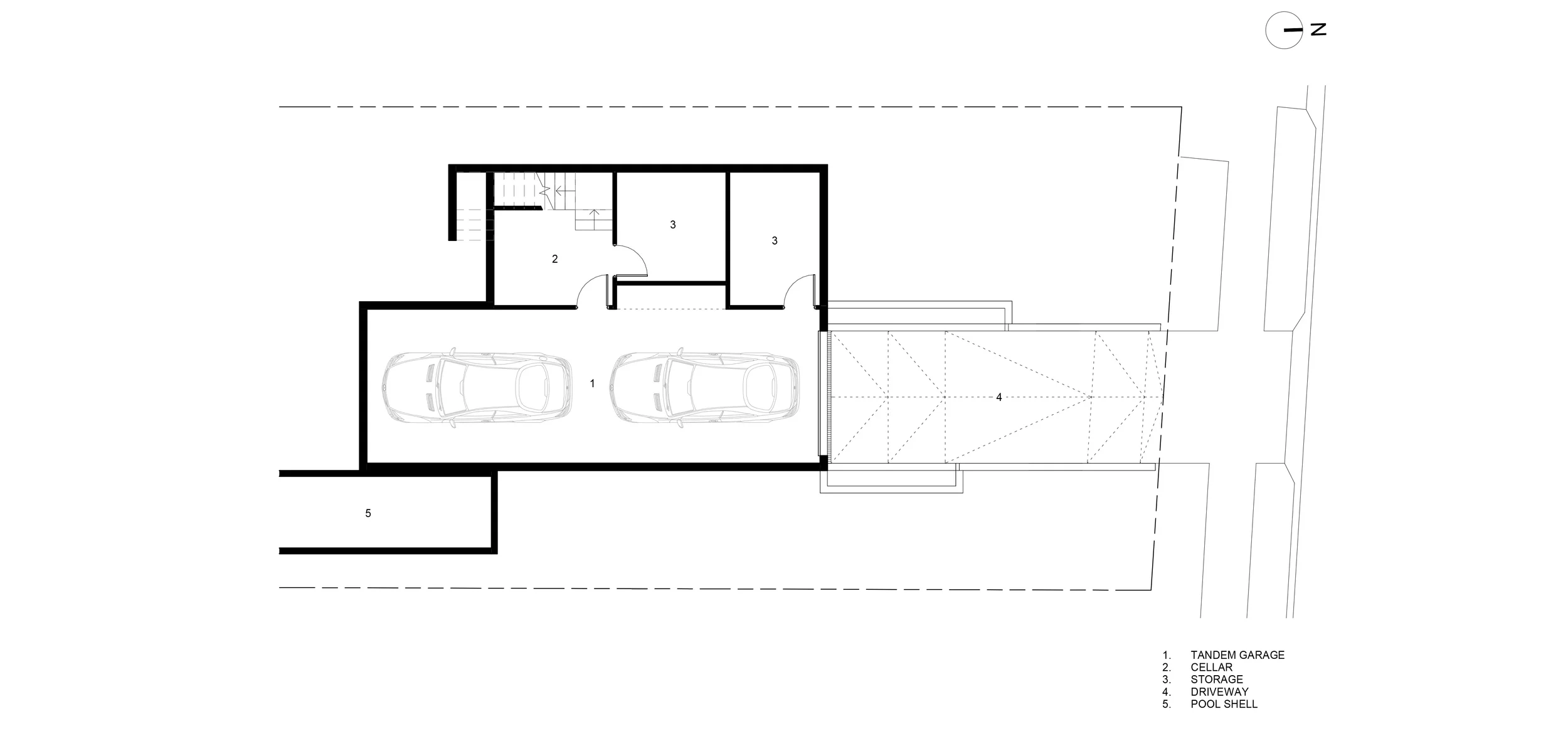
Site constraints

This long, narrow and south-facing block presented a particularly difficult set of obstacles for the design of a new home.

"House Full of Light" solved these problems with a floor plan that considered every possible way to bring natural light and ventilation into every part of the home, transforming the limitations of the block into opportunities to create a home that is "light, bright and beautiful".

Stair void bringing natural light into the home

Design response

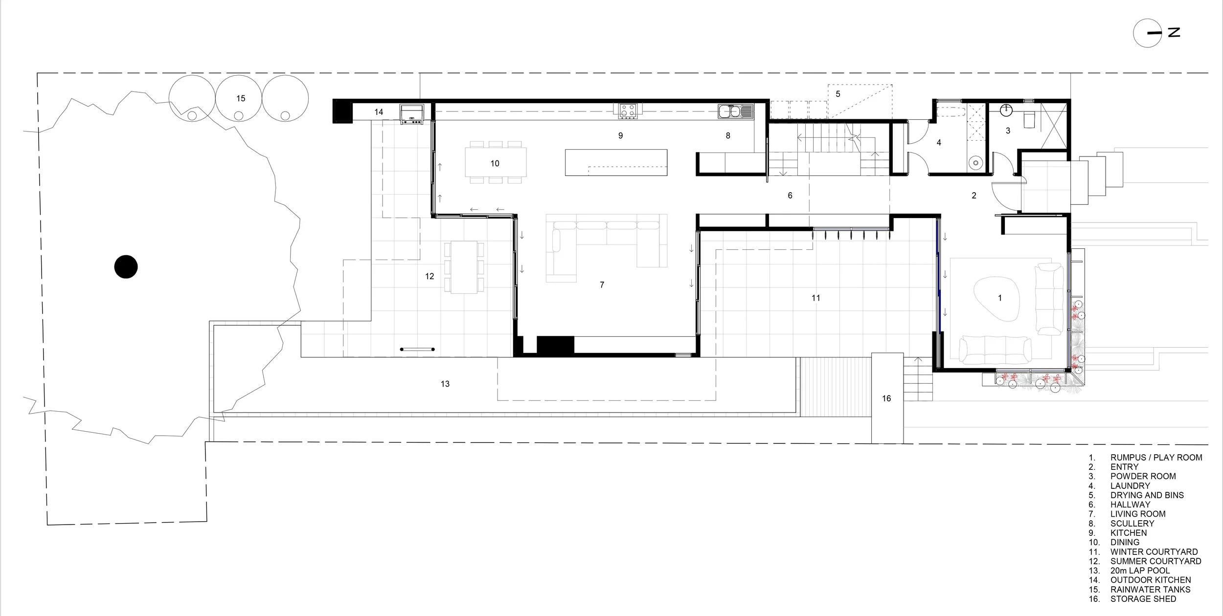
The client brief for our Cronulla architects was a puzzle - a home on a skinny block that wasn’t dominated by a garage door and an interior that defied its southern orientation to be awash with light.

The solution was to excavate the garage partly below ground, allowing for a sunlit rumpus room with strong visual connections to the comings and goings of the streetscape.

A central courtyard allows for a connection between the rumpus at the front of the house and the primary living areas at the rear of the house whilst also bringing natural light into areas that would otherwise remain shadowed.

Living room filled with natural light in modern home

Light and material strategy

The clients desired qualities of “light, bright and beautiful” were considered at every stage of the design process.

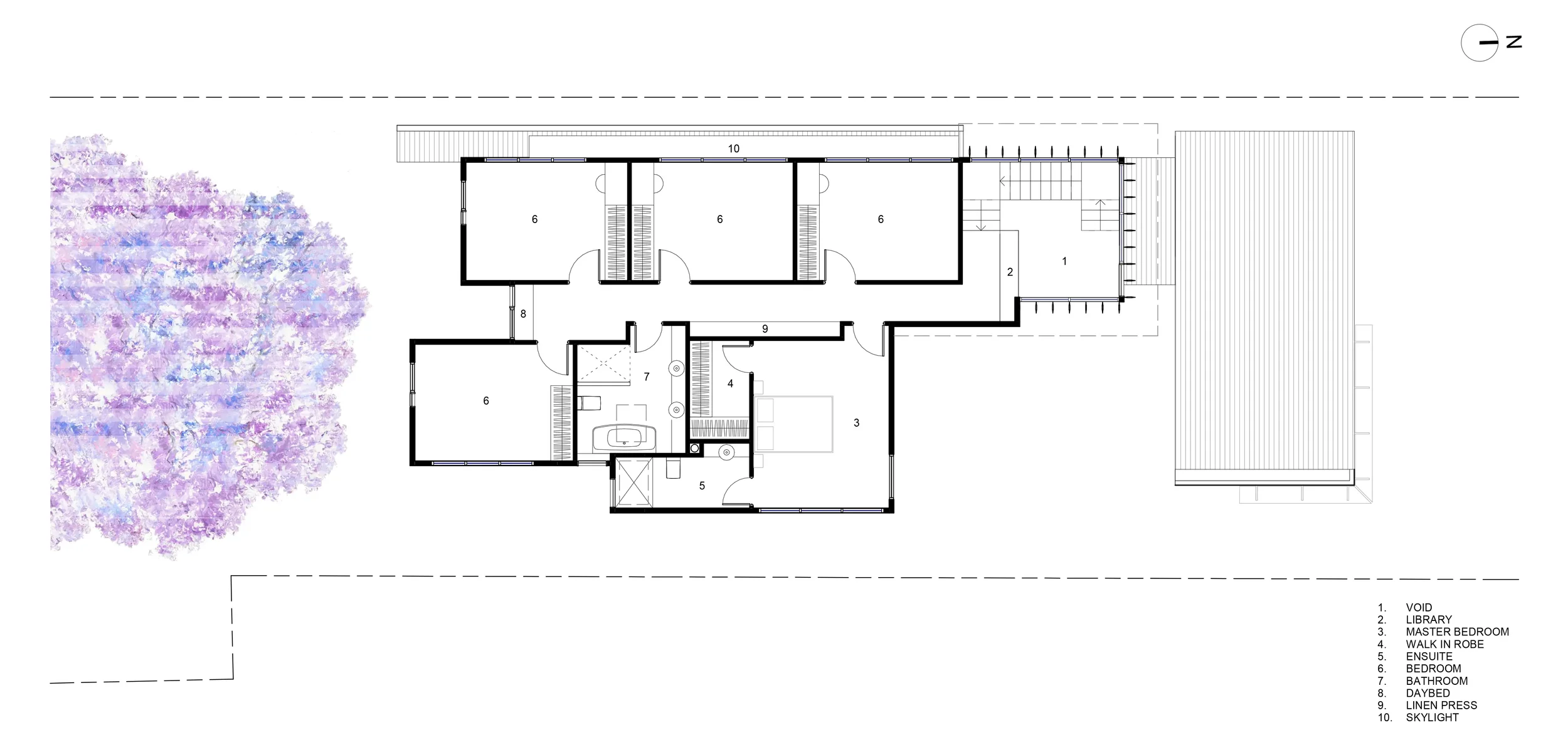
The building footprint has sections cut away to bring light in, windows have been strategically positioned, a double height void creates a dramatic heart whilst acting as a light well and the all-white colour scheme was chosen to reflect light, with a touch of warmth added by the use of Tasmanian Oak throughout.

As a last resort skylights were added to bring light into the areas that had no other way to do so.

Bathroom vanity with arched mirror detail

Living experience

Whilst the home has been designed to accommodate a family of six, it doesn’t feel unnecessarily expansive. It instead offers moments of intimacy and variety - a secluded daybed looking out over the backyard and jacaranda tree, a shady outdoor alfresco for summer time, a sunny north-east courtyard to soak up the sun in winter, living spaces for the family and play spaces (both indoors and out) for the four kids.

Minimal bathroom with white and timber finishes
Pink details bathroom vanity with arched mirror in Sydney

Site-responsive design

By responding to the unique challenges of the site and seeing them not as limitations, but rather as opportunities a rational has been created that gives reason to the form of the building, linking the building with it’s location - the same building form on a different block wouldn’t make sense and wouldn’t function in the same way.

Backyard space with outdoor shower of modern Sydney home
    • A floor plan carefully designed to bring natural light and ventilation into every part of the home, despite a long, narrow, south-facing site

    • A partially excavated garage to reduce its presence on the street while introducing a light-filled rumpus room with a connection to the streetscape

    • A central courtyard linking the front and rear of the house, bringing natural light into the core of the home

    • A building form shaped by cut-outs, strategically placed windows, a double height void and skylights to maximise daylight throughout

    • A restrained material palette, with an all-white interior to reflect light, softened by the use of Tasmanian Oak

    • A sequence of indoor and outdoor spaces offering variety in light, outlook and use, including courtyard, alfresco and backyard

    • A design response that transforms the constraints of a south-facing, narrow site into opportunities to introduce light and ventilation

    • Use of passive design principles to achieve a home that is bright and comfortable, with reduced reliance on active heating and cooling

    • Integration of a central courtyard and light well (double height void) to bring daylight deep into the plan

    • Careful orientation and spatial planning to capture available light despite the site’s limitation

    • A building form directly derived from site conditions, where the design would not function in the same way on a different block

  • Architect Ironbark Architecture

    Lead architect Chris Freeburn

    Builder Buildup Constructions & My Thred Built

    Landscape Design Summerscapes

    Photography Andy Macpherson

    • Harnessing natural light: An innovative solution for a narrow block

      Featured on Lunchbox Architect, July 2024

      View article

We'd love to chat to you about your project

Tell us about it or give Chris a call on 0416 130 246